Wykop.pl Wykop.pl
  • Główna
  • Wykopalisko148
  • Hity
  • Mikroblog
  • Zaloguj się
  • Zarejestruj się
Zaloguj się

Popularne tagi

  • #ciekawostki
  • #informacje
  • #technologia
  • #polska
  • #swiat
  • #motoryzacja
  • #podroze
  • #heheszki
  • #sport

Wykop

  • Ranking
  • Osiągnięcia
  • FAQ
  • O nas
  • Kontakt
  • Reklama
  • Regulamin
Piter85

Piter85

Dołączył 16 lat i 1 mies. temu
  • Obserwuj
  • Akcje 2868
  • Znaleziska 219
  • Mikroblog 2649
  • Obserwujący 1
  • Obserwowane 3
  • Dodane (43)
  • Komentowane (411)
  • Plusowane (2195)
Tulky
Tulky
Tulky
20.08.2023, 10:49:43
  • 1
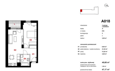
Czy na pierwszy rzut oka coś w tym mieszkaniu jest co je całkowicie dyskwalifikuje? O tym, że aneks kuchenny będzie cały czas ciemy to wiem.

#nieruchomosci #mieszkaniedeweloperskie
Tulky - Czy na pierwszy rzut oka coś w tym mieszkaniu jest co je całkowicie dyskwalif...

źródło: Screenshot_20230820_124717_Word

Pobierz
  • 6
  • Odpowiedz
  • Otrzymuj powiadomienia
    o nowych komentarzach

Piter85
Piter85 20.08.2023, 11:21:02 via Android
  • 0
@Tulky nie zmiescisz tego stolu w kuchni, trza bedzie prostokatny ustawic bliżej kanapy
  • Odpowiedz
Jookav
Jookav
16.08.2023, 03:56:02
  • 207
Treść przeznaczona dla osób powyżej 18 roku życia...
  • 13
  • Odpowiedz
  • Otrzymuj powiadomienia
    o nowych komentarzach

Piter85
Piter85 16.08.2023, 05:21:17 via Android
  • 1
Treść przeznaczona dla osób powyżej 18 roku życia...
  • Odpowiedz
Guzinek
Guzinek
Guzinek
16.08.2023, 00:10:53
  • 92
dobra, może wymuszę na nocnej trochę myślenia
Najbardziej nostalgiczne tytuły dzieciństwa? Zacznę tymi...
Twierdza Krzyżowiec
CS 1.5
Heroes III
Różowa Pantera
  • 75
  • Odpowiedz
  • Otrzymuj powiadomienia
    o nowych komentarzach

Piter85
Piter85 16.08.2023, 05:18:20 via Android
  • 0
7 kingdoms
  • Odpowiedz
Watchdog_Polska
Watchdog_Polska
14.08.2023, 09:29:52
  • 75
Zapraszamy na kolejny #poniedzialekzwyrokiem! Tym razem piszemy o sprawie, w której wnioskodawca chciał się dowiedzieć, czy do urzędu wpłynęło oficjalne oskarżenie przeciwko wójtowi dotyczące mobbingu -https://informacjapubliczna.org/sentence/oskarzenie-wojta-o-mobbing-to-informacja-publiczna/


@Bielecki @wykopowicz_z_kobierzyna @dasfinaleresultat @Sababukin @wcale_mnie_tu_nie_bylo @SpalonyHeretyk @adam-dobrawy @Croises @PanHeniek45 @MandarynWspanialy @iPhoneMaster @Ipsy @login-jest-zajety @matkaPewnegoMirka
__
#prawo #prawodoinformacji #niebojsiepytania #ciagniemywladzezajezyk
WatchdogPolska - Zapraszamy na kolejny #poniedziałekzwyrokiem! Tym razem piszemy o sp...

źródło: wojt_oskarzenie_o_mobbing

Pobierz
  • 28
  • Odpowiedz
  • Otrzymuj powiadomienia
    o nowych komentarzach

Piter85
Piter85 14.08.2023, 10:06:16 via Android
  • 15
Treść przeznaczona dla osób powyżej 18 roku życia...
  • Odpowiedz
Dodi_al_Fayed
Dodi_al_Fayed
13.08.2023, 17:50:34
  • 6
Nazajutrz po objęciu władzy przez PO zbankrutujemy #tvpis
  • 5
  • Odpowiedz
  • Otrzymuj powiadomienia
    o nowych komentarzach

Piter85
Piter85 13.08.2023, 19:45:42 via Android
  • 6
@Dodi_al_Fayed no a nie? NIK i UE sygnalizuje że dlug polski zostal niekonstytucyjnie ukryty w funduszach i innych pozaksiegowych sztuczkach, jsk bedziesz chcial to wyprostowac na legalu to bedzie masakra i szok. pisowce powinni zostać rozstrzelani.

https://www.rp.pl/budzet-i-podatki/art38629751-pis-pokazuje-inny-dlug-publiczny-polakom-inny-brukseli-kolosalna-roznica
  • Odpowiedz
tojestmultikonto
tojestmultikonto
07.08.2023, 02:30:13
  • 70
#tojestmultikonto #ciekawostki #astronautyka

Łajka (ros. Лайка; ur. ok. 1955, zm. 3 listopada 1957) – suka psa, mieszańca, wystrzelona 3 listopada 1957 na orbitę okołoziemską w radzieckim sztucznym satelicie Sputnik 2, kosmonautka Łajka (ros. лайка „oszczekiwacz”) miała wówczas około dwóch lat. Okres szczenięcy przeżyła na ulicach Moskwy. Po jej schwytaniu przekazano ją do Instytutu Medycyny Lotniczej w celu wykorzystania w badaniach związanych z eksploracją kosmosu. Tuż przed
tojestmultikonto - #tojestmultikonto #ciekawostki #astronautyka

Łajka (ros. Лайка; u...

źródło: DIY-E-Cones-1150x700

Pobierz
  • 9
  • Odpowiedz
  • Otrzymuj powiadomienia
    o nowych komentarzach

Piter85
Piter85 07.08.2023, 05:16:27 via Android
  • 2
@tojestmultikonto she is is a bad dog! #pdk
  • Odpowiedz
WielkiNos
WielkiNos
02.08.2023, 07:54:07
  • 13
#dziendobry

Jedzenie na dziś (ʘ‿ʘ)

#arbuz #zakupy
WielkiNos - #dziendobry 

Jedzenie na dziś (ʘ‿ʘ)

#arbuz #zakupy

źródło: temp_file9185443783793808877

Pobierz
  • 7
  • Odpowiedz
  • Otrzymuj powiadomienia
    o nowych komentarzach

Piter85
Piter85 02.08.2023, 11:12:58 via Android
  • 0
@WielkiNos tyle arbuza to bym nawet do chaty nie doniósł, tylko full opcja premium na sztuki po całości brać!
  • Odpowiedz
Rad-X
Rad-X
31.07.2023, 13:33:58
  • 1102
#gordonfuckingramsay #gordonramsay #heheszki #gotujzwykopem #byloaledobre
Rad-X - #gordonfuckingramsay #gordonramsay #heheszki #gotujzwykopem #byloaledobre

źródło: comment_1642887570nr5iKH6A4PiBUban2wNH1h

Pobierz
  • 8
  • Odpowiedz
  • Otrzymuj powiadomienia
    o nowych komentarzach

Piter85
Piter85 31.07.2023, 17:09:14 via Android
  • 4
no cóż ten wypok kuurwa znowu, jak samego gifa wyslac lub chociaż zapisac z poziomu apki? no jak mam heheszki znajomym wysylac, co za padaka.
  • Odpowiedz
Luminarz_Osobisty
Luminarz_Osobisty
26.07.2023, 11:40:55
  • 6
Treść przeznaczona dla osób powyżej 18 roku życia...
  • 34
  • Odpowiedz
  • Otrzymuj powiadomienia
    o nowych komentarzach

Piter85
Piter85 26.07.2023, 14:44:21 via Android
  • 1
@Luminarz_Osobisty tak z innej beczki, zagłosuje na jakąkolwiek partie co wprowadzi kare rozstrzelania dla twórców takich stron
Piter85 - @Luminarz_Osobisty tak z innej beczki, zagłosuje na jakąkolwiek partie co w...

źródło: temp_file3957521068572496820

Pobierz
  • Odpowiedz
Watchdog_Polska
Watchdog_Polska
20.07.2023, 09:15:59
  • 256
Od prawie trzech lat sądzimy się z koalicjantami Zjednoczonej Prawicy o udostępnienie umowy koalicyjnej z września 2020 roku. Koalicji w tym kształcie dawno już nie ma, a umowy nie zobaczyliśmy. Wprawdzie po wyroku NSA Porozumienie Jarosława Gowina przesłało nam treść umowy i nawet przez chwilę się cieszyliśmy, że po licznych zmaganiach udało się ją wywalczyć, szybko jednak okazało się, że to umowa z 2019 roku, a my wnioskowaliśmy o kolejną.¯\(ツ)/¯
Partia w odpowiedzi
WatchdogPolska - Od prawie trzech lat sądzimy się z koalicjantami Zjednoczonej Prawic...

źródło: Dostaliśmy umowę koalicyjną, ale nie tę, o którą wnioskowaliśmy

Pobierz
  • 46
  • Odpowiedz
  • Otrzymuj powiadomienia
    o nowych komentarzach

Piter85
Piter85 20.07.2023, 11:12:22 via Android
  • 17
@Watchdog_Polska cisnać sprawdzać, nie przejmować się dzbanami. powodzenia i plusik!
  • Odpowiedz
luigi_pl
luigi_pl
luigi_pl
18.07.2023, 17:47:43
  • 587
Treść przeznaczona dla osób powyżej 18 roku życia...
  • 163
  • Odpowiedz
  • Otrzymuj powiadomienia
    o nowych komentarzach

Piter85
Piter85 18.07.2023, 22:42:17 via Android
  • 0
@luigi_pl
https://www.google.com/url?sa=t&source=web&rct=j&opi=89978449&url=https://store.steampowered.com/app/1084160/Jagged_Alliance_3/&ved=2ahUKEwiNh_DoqZmAAxUAHRAIHaUQClEQjjh6BAgWEAE&usg=AOvVaw3e4tD6VJSn8ivySfCEXNmT
  • Odpowiedz
Jarusek
Jarusek
04.07.2023, 08:38:09
  • 13
Treść przeznaczona dla osób powyżej 18 roku życia...
  • 28
  • Odpowiedz
  • Otrzymuj powiadomienia
    o nowych komentarzach

Piter85
Piter85 04.07.2023, 14:53:22 via Android
  • 2
@Jarusek a gdzie opcja trzecia: olewam? jak widze krzykliwy nagłówek o jakims geju co sie krzywo popatrzył 6000km stad, to nawet nie wchodze. nie ma obowiązku czytania kazdego znaleziska.
  • Odpowiedz
fifi957
fifi957
fifi957
15.06.2023, 19:08:17
  • 114
Treść przeznaczona dla osób powyżej 18 roku życia...
  • 13
  • Odpowiedz
  • Otrzymuj powiadomienia
    o nowych komentarzach

Piter85
Piter85 15.06.2023, 22:32:59 via Android
  • 1
@fifi957 jezuuuu! jsk moja jedna nieudana ofensywa w total anihilation. ale bylo zbierania metalu.
  • Odpowiedz
Piter85
Piter85 02.06.2023, 12:16:50
  • 2
Treść przeznaczona dla osób powyżej 18 roku życia...
  • 4
  • Odpowiedz
  • Otrzymuj powiadomienia
    o nowych komentarzach

Piter85
Piter85
Autor
02.06.2023, 12:19:34 via Android
  • 0
@ItsGrN no wszedlem na niezalogowany na wypok i tylko ten temat w kółko, ladnie nie maja czego sie czepiać
  • Odpowiedz
MatthewN
MatthewN
15.05.2023, 12:45:10
  • 10
Treść przeznaczona dla osób powyżej 18 roku życia...
  • 1
  • Odpowiedz
  • Otrzymuj powiadomienia
    o nowych komentarzach

Piter85
Piter85 15.05.2023, 15:11:16 via Android
  • 1
@MatthewN kuzynka na rodzinnym zjeździe u dziadków vibe
  • Odpowiedz
Lethorn
Lethorn
15.05.2023, 10:02:02
  • 3
Czyja to robota?
#las #przyroda #zwierzeta #natura
Lethorn - Czyja to robota? 
#las #przyroda #zwierzeta #natura

źródło: received_269256552187531

Pobierz
  • 4
  • Odpowiedz
  • Otrzymuj powiadomienia
    o nowych komentarzach

Piter85
Piter85 15.05.2023, 15:08:02 via Android
  • 0
@Lethorn jakby spał
  • Odpowiedz
Blueweb
Blueweb
15.05.2023, 04:41:04
  • 154
Treść przeznaczona dla osób powyżej 18 roku życia...
  • 17
  • Odpowiedz
  • Otrzymuj powiadomienia
    o nowych komentarzach

Piter85
Piter85 15.05.2023, 08:41:54 via Android
  • 0
@Blueweb dobrze ze jeszcze rok i wojna nuklearna, trud bedzie skończon #pdk
  • Odpowiedz
Sasko
Sasko
15.05.2023, 00:07:16
  • 4
Miał ktoś problemy z deweloperem przed odbiorem mieszkania? Do kogo można się zgłosić w takiej sprawie, prawnik, jakiś inspektor budowlany? Sytuacja jest taka:

- kupiłem mieszkanie z rynku pierwotnego

- w umowie deweloperskiej nie miałem planu grzejników, instalacji elektrycznych, dostałem go osobno na maila

-
  • 23
  • Odpowiedz
  • Otrzymuj powiadomienia
    o nowych komentarzach

Piter85
Piter85 15.05.2023, 08:08:24 via Android
  • 3
@MonsterKill no i niby zapis o braku zmian w projekcie czy tam mieszkaniu? niby dlaczego? wg mnie developer januszbud, trza cisnąć takich na maxa, ja bym jeszcze zapłacił za specjalną ekspertyze akustyki, czy jest wymagane chyba 50db. generalnie caly dzial bezpieczeństwa użytkowania zawarty w warunkach technicznych przewertowal, cocby to miala byc za duza szczelina w balustradzie i cisnać. ja do deweloperow nic nie mam, w szczególności szacunku.
  • Odpowiedz
  • <
  • 1
  • 2
  • 3
  • 4
  • 5
  • 6
  • 7
  • 8
  • 21
  • Strona 5 z 21
  • >

Osiągnięcia

  • Rocznica
    od 15.10.2025

    Rocznica
  • Gadżeciarz
    od 05.10.2016

    Gadżeciarz

Wykop © 2005-2025

  • O nas
  • Reklama
  • FAQ
  • Kontakt
  • Regulamin
  • Polityka prywatności i cookies
  • Hity
  • Ranking
  • Osiągnięcia
  • Changelog
  • więcej

RSS

  • Wykopane
  • Wykopalisko
  • Komentowane
  • Ustawienia prywatności

Regulamin

Reklama

Kontakt

O nas

FAQ

Osiągnięcia

Ranking