Gdy myślisz że deweloperuchy już nic nowego nie wymyślą.
Wybudowanie hotelu po czym zamiast wynajmować pokoje, można je przerobić na mikro "apartamenty" za 300-500k xD
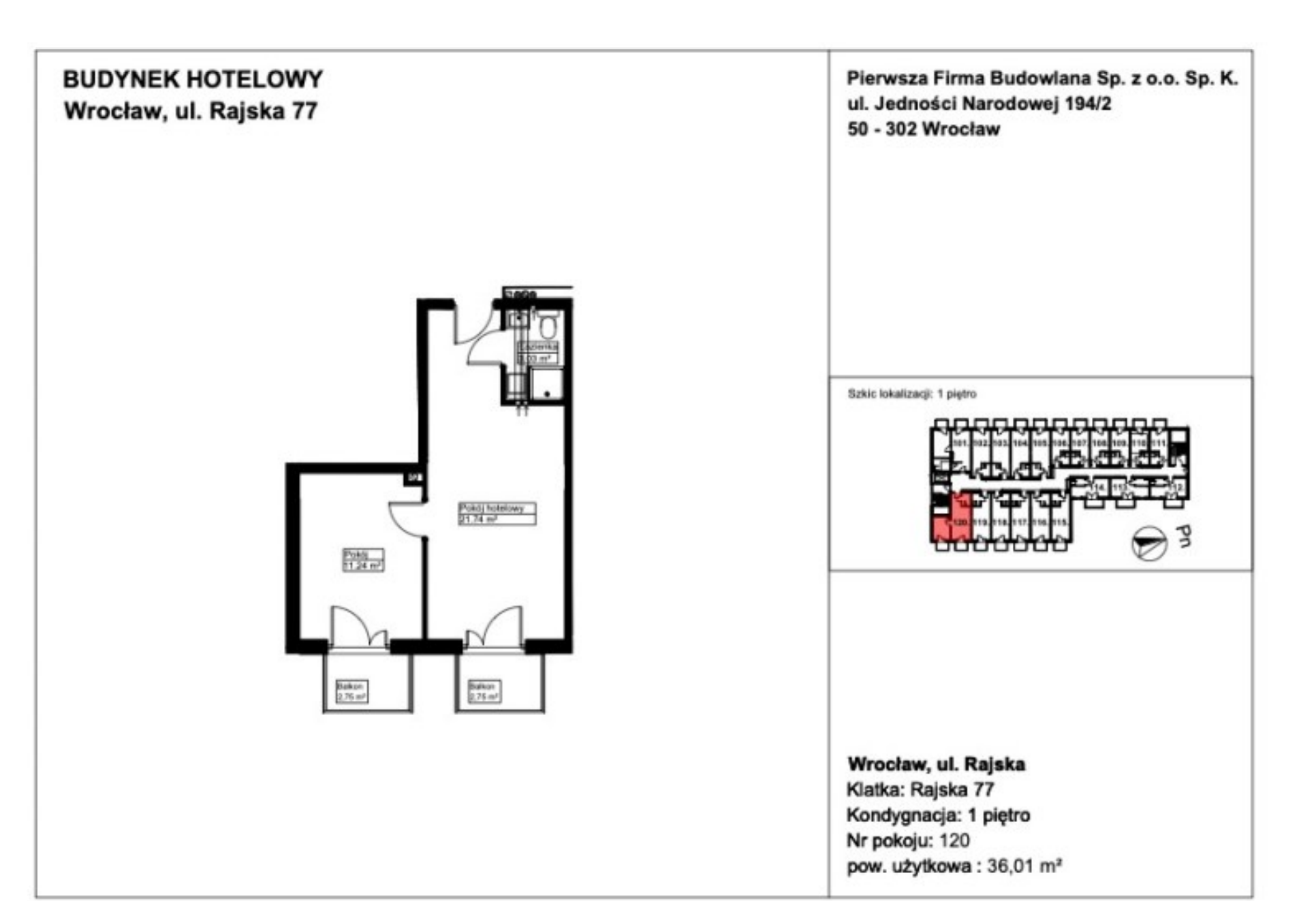
Plan zagospodarowania przeszkodą ? Jak widać nie. Deweloper postarał się nawet o takie udogodnienie jak "pokoje hotelowe" w własnym apartamencie :D
I tym sposobem załataliśmy dziurę na rynku na "58 apartamentami z przemyślanymi i funkcjonalnymi układami"
https://investmap.pl/wroclaw-na-zlotnikach-moze-pojawic-sie-nowy-budynek-hotelowy.a147230
Wybudowanie hotelu po czym zamiast wynajmować pokoje, można je przerobić na mikro "apartamenty" za 300-500k xD
Plan zagospodarowania przeszkodą ? Jak widać nie. Deweloper postarał się nawet o takie udogodnienie jak "pokoje hotelowe" w własnym apartamencie :D
I tym sposobem załataliśmy dziurę na rynku na "58 apartamentami z przemyślanymi i funkcjonalnymi układami"
https://investmap.pl/wroclaw-na-zlotnikach-moze-pojawic-sie-nowy-budynek-hotelowy.a147230


zrobiłem research jaką pastę zastąpić Elmex, od kiedy zmienili skład i usunęli Olaflur.
Wyszło mi, że jest super pasta i do tego polski produkt i polski kapitał, a nie jakaś amerykańska korpocja jak w przypadku Elmex (Colgate-Palmolive).
Najbardziej mi pasuje Ziaja Activ pasta stomatologiczna przeciwpróchnicza – zawiera aminofluorek (Olaflur) + fluorek sodu, czyli pełną ochronę przed próchnicą, jak stary dobry Elmex przed zmianami.
Ale są też inne fajne pasty od Ziaji, jak ktoś chce
źródło: ziaja-elmex
Pobierzźródło: 1000035256
Pobierz